
閥體材質:鑄鋼(WCB)、不銹鋼、PVC、聚四氟乙烯
適用介質:水、氣、油、腐蝕流體等易燃易爆流體
壓力范圍:0-0.1MPa、0.6MPa、1.6MPa、2.5MPa、4.0MPa、6.4MPa
原理結構:先導式、分布直動式 控制方式:常開、常閉、二位三通
防護性能:防塵、防水、防爆 電源電壓:DC12~220V;AC24~380V
接線方式:接線座式;引線式 溫度范圍:-40℃、0-80℃、+200℃
防爆等級:ExdIICT6、ExdIICT5、ExdIIBT4、ExmbIICT4
連接方式:螺紋(內螺紋、外螺紋)、法蘭RF、凹凸法蘭
臺銘公司專業提供防爆電磁閥系列產品,歡迎來電咨詢碳鋼防爆電磁閥產品詳細信息,結構尺寸參數、價格等詳情,我們將竭誠為您提供優質的服務!
鑄鋼防爆電磁閥設計原理:
上海臺銘碳鋼防爆電磁閥是把設備可能點燃易燃易爆性氣體混合物的部件全部封閉在一個外殼內,其外殼能夠承受通過外殼任何接合面或結構間隙,滲透到外殼內部的可燃性混合物在內部易燃易爆而不損壞,并且不會引起外部由一種、多種氣體或蒸氣形成的易燃易爆性環境的點燃,把可能產生火花、電弧和危險溫度的零部件均放入隔爆外殼內,隔爆外殼使設備內部空間與周圍的環境隔開。
碳鋼防爆電磁閥應用范圍:
鑄鋼防爆電磁閥是特別設計適用于傳輸易燃易爆介質或專用于易燃易爆危險場所的特殊電磁閥系列產品,主要應用于燃氣設備、石油液化氣、煤氣自控、沼氣自控、濾油機、船舶重工、石化、電力、化學、輕工、機械、科研、工業窯爐、等易燃易爆介質自控等,不同的環境和流體應選擇不同防爆等級的電磁閥。
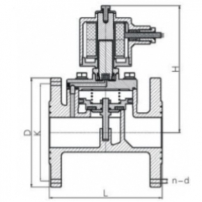
防爆電磁閥外形尺寸:


| 公稱通徑 | 內螺紋 | 法蘭(單位mm) | ||||||||
| G螺紋 | L | H | 重量KG | L | H | D | K | n-d | 重量KG | |
| DN15 | G1/2 | 70 | 150 | 2.3 | 100 | 150 | φ95 | φ65 | 4-φ14 | 3.5 |
| DN20 | G3/4 | 85 | 160 | 2.5 | 110 | 155 | φ105 | φ75 | 4-φ14 | 4 |
| DN25 | G1 | 95 | 165 | 2.8 | 125 | 165 | φ115 | φ85 | 4-φ14 | 5 |
| DN32 | G1-1/4 | 115 | 180 | 3.5 | 140 | 170 | φ135 | φ100 | 4-φ18 | 6.3 |
| DN40 | G1-1/2 | 130 | 190 | 4.3 | 150 | 180 | φ145 | φ110 | 4-φ18 | 7.5 |
| DN50 | G2 | 145 | 205 | 4.5 | 165 | 185 | φ160 | φ125 | 4-φ18 | 9 |
| DN65 | 200 | 250 | φ180 | φ145 | 4-φ18 | 16 | ||||
| DN80 | 240 | 270 | φ190 | φ160 | 8-φ18 | 21 | ||||
| DN100 | 280 | 305 | φ215 | φ180 | 8-φ18 | 31 | ||||
| DN125 | 310 | 305 | φ145 | φ210 | 8-φ18 | 41 | ||||
| DN150 | 460 | 360 | φ280 | φ240 | 8-φ23 | 56 | ||||
| DN200 | 600 | 450 | φ335 | φ295 | 12-φ23 | 91 | ||||
| DN250 | 650 | φ405 | φ355 | 12-φ26 | ||||||
| DN300 | 750 | φ460 | φ410 | 12-φ26 | ||||||
| DN350 | 850 | φ520 | φ470 | 16-φ26 | ||||||
| DN400 | 950 | φ580 | φ525 | 16-φ30 | ||||||
| DN500 | 1150 | φ715 | φ650 | 20-φ33 | ||||||
防爆電磁閥工作原理:
常閉:當電磁閥線圈通電時,電磁鐵芯吸合,電磁閥卸壓孔打開,主活塞由介質壓力推動,打開電磁閥主閥口,介質流通。
當電磁閥線圈斷電時,電磁閥主閥口關閉,介質截止。
常開:當電磁閥線圈通電時,電磁鐵芯吸合,電磁閥卸壓孔關閉,主活塞由介質壓力推動,關閉電磁閥主閥口,介質截止。
當電磁閥線圈斷電時,電磁閥主閥口打開,介質流。
電磁閥可加配置功能:
◆信號反饋:當電磁閥打開時,信號公共線和開信號線接通;電磁閥關閉時,信號公共線和關信號線接通。
◆手動功能:旋轉電磁閥手動開關來控制電磁閥開、閉。
◆自保持功能:當電磁閥2號線圈通電2~3秒后斷電,電磁閥打開。當電磁閥1號線圈通電2~3秒后斷電,電磁閥關閉。
溫馨提示:
本文中所有文字、數據、圖片適用于參考,需要查看更多的(WCB)鑄鋼防爆電磁閥性能參數、結構尺寸、價格等詳情請聯系我們。

接線座式防爆電磁閥簡介: 接線座式防爆電磁閥適用于易燃易爆介質,以及

不銹鋼高壓防爆電磁閥是用電磁控制的工業設備,是用來控制流體的自動化

碳鋼防爆電磁閥是把設備可能點燃易爆性氣體混合物的部件全部封閉在一個

法蘭不銹鋼高壓防爆電磁閥配置帶防爆接線裝置的隔爆型電磁線圈及配置帶

直動式防爆電磁閥一般是用于小口徑,低壓力的管道,直動式結構的電磁閥